基坑钢筋混凝土支撑爆破拆除技术
发布时间:2018-04-27 15:38:34 阅读次数:次
汪 浩 陶顺伯 徐建勇
(上海同炬爆破工程有限公司,上海,200092)
摘要:基坑钢筋混凝土支撑是地下围护结构的一种新形式,其钢筋混凝上支撑围檩的爆破拆除也是随基坑围护体系发展起来的新方法。论文回顾了20年来这一拆除方法的发展与完善过程,介绍了利用非电微差和孔内、外接力传爆技术,结合专门设计的预埋孔和全封闭防护技术,增大了一次拆除量,免去了钻孔作业工作量,有效地控制了爆破有害效应,使城市中大规模的支撑爆破拆除得以实现,并逐步形成一种多、快、好、省的支撑爆破拆除方法,得到广泛的推广应用。
概述
随着我国改革开放的不断深入,建筑业蓬勃发展,大批高层建筑兴建和地下空间开发利用的需要,地下停车场、地下商业区和地铁车站的建设不断涌现。这些地下工程的建造,必须要在一个预先开挖好的基坑内进行,所以在软土地区的深基坑也大量出现,而作为支护深基坑的临时性钢筋混凝土支撑体系也就应运而生。随着工程规模的增大,单个基坑的面积和基坑的深除,大量的支撑需尽快拆除。我公司自 1994年起开始采用爆破这种新工艺进行拆除,至今已有20个年头,回顾这20年的历程,利用非电微差爆破技术,采用小药量多段别和全封闭式防护,使城市中较大规模的支撑爆破拆除得以成功,并得到了认可和应用,且在不断的改进中得到了发展和完善。
对于面积较小形状规则的基坑,以往一般采用钢管支撑,拆卸比较方便。但对平面形状比较复杂,面积较大的基坑,钢管支撑不稳坍塌的事故屡有发生。因此产生了整体性好,刚度大的现浇钢筋混凝土支撑体系作为临时支护。混凝土强度等级达到C30~C40,一般含钢量达150~200kg/m3甚至更高,非常坚固。当时用人工拆除,功效很低,施工进度很慢,远不能满足基坑施工进度。机械破碎在当时还没有相适应的液压镐头机。静态破碎剂对此类支撑的破碎效果很差,无法推广使用。
为了解决基坑支护新技术的推广,必须要解决好拆除工期过长,影响整个施工进度的难题。虽然当时我们的城市控制爆破技术已经比较成熟,在理论上和技术上都能实施支撑的爆破拆除。但爆破拆除的安全性、可靠性,对基坑围护结构的损伤,对周围建筑物及其内部设施以及地下管线的影响,爆破飞石和冲击波对人身的伤害等问题在当时很难讲清,为此我们和支撑设计部门多次协调、研究,经过反复试验,终于证明爆破的安全性和可靠性是有保障的;同时,利用非电微差起爆技术可以把一段起爆药量产生的爆破振动控制在国家规程允许的范围以内,而通过分段延期技术,把段别量增加到可以一次拆除任意多的工程量(理论上);特别是围檩和基坑围护结构(工程灌注桩或地下连续墙)不是现浇的整体结构,中间有施工缝,因此围檩拆除爆破产生的裂缝延伸到施工缝为止,不可能向灌注桩或连续墙内发展延伸,也即爆破只会破碎支撑体系本身,不会损伤围护结构。至于对周围建筑物及其内部设施、地下管线的影响以及对人身的伤害等,已在城市建筑物拆除爆破中得到解决,所以将拆除爆破应用到支撑和围檩的拆除中是完全可行的。
2支撑爆破拆除施工工艺的发展与提高
支撑拆除爆破属于城市控制爆破,首要的还足要控制爆破振动和爆破飞石;其次是根据城市爆破的特点要求爆破次数要少,因此单次破碎l?程量就要大,以加快拆除速度。近年来为了加快施工进度,降低爆破负效应的影响,我们在爆破参数的确定、爆破振动的控制、施工工艺、安全防护及减小扰民等方面进行不断改进,使得爆破方案更加完善。
我公司仅1994年就承接并完成了6项支撑爆破拆除工程,总工程量约6000m’,其中包括江苏大厦、嘉兴大厦、华侨大厦、长发花园、置地广场和临江花园。一开始我们还是采用钻孔方案,孔距按常规确定,爆破效果也不错,但发现一些问题,如药量偏小,孑L浅易发生冲孔,孔深易发生穿孑L等现象;炸药采用粉状的2号铵梯炸药,爆前要加工药包,网络采用四通连接装药,连线时间过长,影响施工进度,一天只能爆破200~300m’;防护较差,飞石经常有,主要依靠安全警戒。为解决这些制约爆破拆除的难题,公司做了大量的试验研究工作,根据施工实践,进行了下列改进。
2.1布孔技术改进
支撑布孔原先是按梁、柱爆破的布孔形式布置垂直孔,支撑截面较大(宽)就按“梅花形”布孔,孔径d取40mm左右,抵抗线W取250~300mm,排距b≤W,孔距按毫秒爆破取a=2W,孔深L取 1103093551.png (梁高),如图1所示。大量实践表明,由于支撑爆破时抵抗线相对比较小,横向箍筋直径又小,混凝土抵抗横向变形的阻力相对比较薄弱,容易产生裂缝破碎,而纵向主钢筋粗炸小断,但钢筋向外移动会使纵向裂缝扩展得更加充分。同时我们也发现部分哑炮区的混凝土由于受邻近炮孔爆破影响,也已经破碎,只是块径大一些,这说明支撑爆破时主筋振动加强了爆做的效果,所以炮孔孔距还有潜力可挖,因此我们将炮孔孔距增加了近一倍,a=800~1000mm,这样只要简单地调整单孔药量,就可以减少炮孔,不仅节约了成本,减少了工作量,而且还改善了爆破效果,实践证明这一改动非常成功,为现在绝大多数工程所采用。

同时实践也告诉我们,常规炮孔深度设计对于支撑爆破来说也并不完美,支撑爆破应增加炮孔孔深,由原来的 1103093551.png,改变为留底200mm,它不仅可以增加装药量和增加堵塞长度,更可以减少向上15I行和改孵爆破效果,更加符合基坑支撑爆破拆除的特点。
2.2起爆延期的改变和调整
采用非电微差起爆系统,就是为了控制一段最大起爆药量,增加起爆段数,以增加一次起爆的拆除工程量。为此耍进行孔内外延期的传爆网络设计。早先采用常规的微差爆破网络设计,即采用孔内毫秒延期,由于段别数量有限,所以采用若干段为一组,组与组之间用毫秒延期传爆,如图2所示。在施工过程中,由于装药与连线这两道工序技术难度较大,施工速度较慢,而改为孔内单一的瞬发雷管起爆,孔外用毫秒延期传爆。这一改变虽然连线速度提高,瞬发雷管起爆时间离散性小,爆破效果好,但由于爆破速度快,传爆速度慢,传爆网络容易被飞石打断。为此必须用材料覆盖传爆网络进行保护。后改用孔内半秒高段位爆破,孔外毫秒低段位传爆,孔外毫秒低段位传爆速度快,孔内半秒高段位起爆慢(网络如图3所示),传爆网络不会被打断,也不需要覆盖保护网络,既节省材料又节省人工,但孔内雷管起爆时间离散性大,炸药爆破的共同作用性差,须适当提高炸药单耗,以保证爆破效果,此举可以大大提高爆破一次成功率,被广泛推广应用。


2.3炮孔施工工艺改革
早期的炮孔是在支撑爆破前采用人工钻孔,但这类施工要等支撑混凝土达到一定强度,钻孔工期长,往往要提前进场施工,对整个基坑施工影响很大,而且噪声粉尘也很大,不满足环保要求。为了解决这一问题,我们考虑了预埋孔工艺,在浇筑混凝土时就派人员配合预埋,爆破时准备工作大量减少,只需在搭建防护时派人清孔、补孔、验孔,减少了钻孔噪声和灰尘,减少了钻孔噪声和灰尘,减少了耗电量,减少了准备工作量及时间,减少了施工压力。
2.4起爆网络连接形式的改进
起爆网络连接是支撑爆破的一个关键工序。因为量大,传统的拆除爆破网络四通连接的方法不仅连线慢,还由于接口多,容易发生漏接和接线质量问题引起传爆中断;考虑到要保证网络传爆的可靠性,同时也要提高连线速度,改用大把抓的连线方式,如图 4(大把抓连线)所示,虽然导爆管用量增加但接线速度快,准爆率高,控制一段起爆药量更有效,这在许多基坑支撑爆破中体现出了优越性。

3.安全防护和减振措施的改善
技术上的发展给予支撑拆除爆破很大的生命力,逐步在上海以及各地推广应用,但安全防护工作乃是工程是否能顺利开展的关键。防护工程工作量大而繁重,爆前要搭设好,爆后要拆除,搭得马虎就满天飞,材料损耗大。最初支撑拆除爆破的防护只在支撑面上覆盖两层草包和两层竹排,爆破后防护材料和石块满天飞,如最早的1994年的中心广场支撑等。其后沿支撑两侧和顶面搭脱离式钢钎脚手架,挂一层竹排,爆破后竹排基本飞光,延期起爆的飞石还是到处飞,如不夜城中心支撑的爆破拆除(1995年)。这种情况在上海这样的闹市中心显然无法生存立足,不控制好飞石就无法采用爆破方法进行拆除。
3.1支撑爆破安全防护的改进
经过多次尝试之后我们采用全封闭脱离式防护(如图5所示),上盖双层竹排和一层密目绿网或草袋再加井字形钢管压住,爆破后能基本满足飞石不出基坑。自1996年以后的申华金融大厦、圣爱广场、南洋广场支撑等大量的支撑爆破拆除工程均采用这一方法,并推广到所有的支撑爆破项目中去。

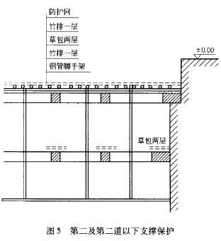
全封闭防护虽然可保证飞石不出基坑,但是当处理上道支撑时,仍会有个别飞石飞出,所以我们对上层支撑设计了双层封闭式防护(如图6所示),而下层支撑爆破仅用一层封闭式防护就够了。防护棚的作用除防琶石外,还有降尘作用,所以在两层竹排问要夹一层密目绿网或草袋,潮湿的更好。此外防护棚还有降低噪声和减弱冲击波的作用。防护效果的好坏与防护材料的好坏和搭设质量的好坏有关。如果防护覆盖一旦被气浪冲开,防护材料、飞石和灰尘就满天飞。因此防护覆盖整体性要好,有一定重量,覆盖层还要与下部围檩设置拉结点,以保证飞石不出基坑。

3.2支撑爆破的振动控制
在爆破振动控制方面,严格控制爆破单耗和一段起爆药量,一般每段控制在2~3kg以内。在振动要求严格的地段,支撑与围檩的连接点采用人工切断或布置预裂孔在爆破时先进行预裂爆破切断。对振动要求高的部位,最大起爆药量还可控制在1kg,甚至更低一些。这样不仅能控制爆破振动,还可以降低爆破噪声。
经过上述改变,支撑拆除爆破技术不断完善,不仅较好地控制了爆破振动和爆破飞石,拆除速度也大大提高,由原来的每炮300~400m3增加到每炮1000~2000m3,最多一炮引爆过上万发雷管,炸药2~3t。
4工程实例
为了说明上述经过改进的爆破技术,下面举例上海静安嘉里综合发展项目作为典型工程实例。
4.1概况
静安嘉里项目位于延安中路铜仁路口,南侧距离高架11m,北侧安义路上有重要历史文物保护建筑,距离仅6m,西侧为常德路与7号线静安寺站地连墙仅5,周边环境十分复杂,环境如图7所示。基坑不仅面积大,深度大(地下5层,27m),而且方量也大,总拆除支撑方量为3.4×104m3,其中2~5层采用爆破拆除,计2.4×104m3。第一层采用机械拆除,计1×104m3。

4.2支撑爆破技术参数
支撑爆破技术参数分别为:最小抵抗线W=250~300mm;孔距a=1000mm;排距b=200~300mm;
孔深L=0.7mm。
支撑爆破采用乳化炸药,起爆系统采用塑料导爆管复式起爆网络,延期选择孔内半秒延期雷管Hs-4、Hs-5、Hs-6,孔外用毫秒延期雷管Ms-3和Ms-5,连线方式采用一把抓。爆破设计参数可参见表l。

4.3爆破振动控制与防护
(1)孔内外微差爆破,一段药量小于2kg,重点保护部位控制在1kg以下;
(2)为确保地铁和保护建筑的安全,对这两个部位的支撑和围檩连接处爆破前用人工事先切断处;
(3)整个基坑各点测试的振动值均控制在v=2cm/s以下;
(4)防护采用标准形式全封闭防护,如图8所示,保证飞石不出基坑。

4.4爆破效果
该工程自2009年9月开始至2010年3月最后一次爆破结束,共计爆破24000m3,平均每层6000m3,每次爆破2000m3,每次消耗乳化炸药2.4t,雷管12000发。爆破效果良好,破碎充分,如图9所示,周边地铁保护建筑未受影响,飞石不出基坑边界。

5结论
深基坑工程是在软土地层(特别是饱和干)中大规模修建地下建筑(亦称埋入式结构)时采用的的托换式施工方法,20多年来得到广泛的推广应用。
在过去,这类工程很少,有也是规模不大,采用木材或钢结构作临时支护建造,进度很慢,还容易失稳,未被推广应用。由于现代建筑技术的发展,也为了合理地开发利用城市地下资源,开拓者将成千上万平方米甚至几万平方米的土地向下开挖几层,最深达到27m甚至更深,建造高层建筑的箱形深基础,用作地下停车库、地下商场等公共设施。到目前为止,深基坑工程就是在软土地层中完成这类工程的最好施工办法。
深基坑施工是在地面以下提供一个足够大的空间修建地下设施。为了克服周围巨大的水土压力,在这个空间的周围设置一道挡土止水的围护结构。为了节省材料,充分利用空间,围护结构必须自上而下,修建一道道临时支撑。施工中是浇筑一道支撑,开挖一层地层,直至设计底标高;然后浇筑永久性的大底板后进行换撑;再自下而上拆除一道临时支撑,浇筑一层地下室,并进行换撑,直至地面标高。由于基坑面积大,深度也大,临时支撑材料必须用高标号钢筋混凝土。用钢筋混凝土作临时支撑,可靠性有保障,但拆除难度大大增加,而且一层支护的混凝土量有几千立方米,根据工程进度要求尽可能压缩拆除时间,所以支撑采用拆除爆破成为与这一工法相配套的多、快、好、省的拆除方法。
基坑支撑和围檩的爆破拆除就是由此而发展起来的一门新技术,它是从20世纪90年代初地下围护结构改用钢筋混凝土以来,为配合新型围护结构而采用的拆除方法,经历了一个不断改进、完善和发展进步的过程,该过程见表2。

如今支撑爆破拆除已经是一个相当成熟的工艺。它不仅在上海,凡是在有软土地基的地方如天津、苏州、无锡、常州、宁波、福建甚至武汉都在广泛地使用。回顾这一工艺方法20年来走过的路程,我们深深体会到实践出真知、技术出效益的真理始终是正确的。一个好的基坑围护方法,必须要有与之配套的拆除办法,而实践证明爆破拆除是基坑支撑拆除的最佳选择。
参考文献
[1]冯叔瑜,等.城市控制爆破[M].北京:中国铁道出版社,1985.
[2]汪旭光,于亚伦.21世纪的拆除爆破技术[J].工程爆破,2000,6(1):32~35.
[3]汪浩,郑炳旭.拆除爆破综合技术[J].工程爆破,2003,3,9(1):27~31.
[4]陶顺伯.深基坑钢筋混凝土支撑爆破拆除技术[C]//工程爆破文集(第六辑).深圳:海天出版社,1997.
[5]张厚科,等.天山世纪广场基坑钢筋混凝土支撑爆破拆除[C]//中国爆破新技术Ⅲ.北京:冶金工业出版社,2008.




